本產品屬擴散型混合器,適用于高爐富氧管道,氧氣與空氣充分混合,提高燃燒溫度。本產品也完全可應用于將兩種不同重度的氣體進行混合的工藝裝置中。
二、結構特點
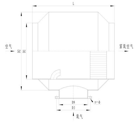
本產品由內、外筒體,導流筒和混合單元組成(見下圖)。氧氣進入兩筒體之間的空間后經導流筒引入空氣流中實現初混,然后進入混合單元,被多次切割分流,從管尾出來的已經是均勻混合的富氧空氣。
三、外形尺寸及主要技術參數

|
公稱通徑 |
內筒長 |
內筒直徑 |
外筒直徑 |
法蘭孔位 |
連接孔 |
氧氣流量 |
空氣流量 |
|
DN |
L |
D1 |
D2 |
D3 |
n-Φ |
Nm3/h |
Nm3/h |
|
400 |
1350 |
Φ820×8 |
Φ1120×8 |
Φ495 |
16-Φ22 |
5650 |
4500 |
|
500 |
1500 |
Φ1020×8 |
Φ1420×8 |
Φ600 |
20-Φ22 |
8830 |
7100 |
|
600 |
1750 |
Φ1220×8 |
Φ1620×8 |
Φ705 |
20-Φ26 |
12700 |
10200 |
|
700 |
2000 |
Φ1420×8 |
Φ1920×10 |
Φ810 |
24-Φ26 |
17300 |
13800 |
|
800 |
2200 |
Φ1620×10 |
Φ2220×10 |
Φ920 |
24-Φ30 |
22600 |
18000 |
|
1000 |
2500 |
Φ2020×10 |
Φ2624×12 |
Φ1020 |
24-Φ30 |
35300 |
28300 |
|
1200 |
2800 |
Φ2420×12 |
Φ3224×12 |
Φ1120 |
28-Φ30 |
50900 |
40700 |
注:
①空氣壓力取0.08MPa,氧氣壓力取0.18~0.27MPa;計算流量時空氣流速取2.5m/s、氧氣流速12.5m/s。
②示例:公稱通徑為800的氧氣混合器:OXV-800。
③本產品為焊接式。用戶若需用法蘭連接,請在合同中注明選 用法蘭的標準的和規格。




